Sobha One World Floor Plan

Sobha One World Apartment 1 bhk floor plan by Sobha Limited located at Sarakariguttahalli, Hoskote, Bangalore Karnataka
Sobha One World Apartment 2 bhk floor plan by Sobha Limited located at Sarakariguttahalli, Hoskote, Bangalore Karnataka
Sobha One World Apartment 3 bhk floor plan by Sobha Limited located at Sarakariguttahalli, Hoskote, Bangalore Karnataka
Sobha One World Apartment 4 bhk floor plan by Sobha Limited located at Sarakariguttahalli, Hoskote, Bangalore Karnataka

Sobha One World Floor Plan is thoughtfully crafted to offer a perfect mix of comfort, functionality, and modern design across all apartment types. Spread across 18 high-rise towers with a structure of 3 basements, ground, and 53 floors, the project includes 5,406 well-planned homes ranging from 740 sq. ft. to 2,500 sq. ft. Sobha Hoskote Bangalore floor plan clearly explains how each apartment is structured, showing the placement of living areas, bedrooms, kitchen, balconies, and utility zones. Moreover, every layout is designed to ensure smooth movement, maximum space utilization, and excellent natural ventilation, making daily living more comfortable. With Vaastu-compliant planning and smart layouts, the project caters to individuals, couples, and large families.

A floor plan is essential because it helps buyers understand how a home will function in real life. It gives a clear idea of room sizes, layout flow, and usable space. At Sobha One World, the layouts are designed to avoid wasted areas, ensuring that every space is practical while maintaining privacy and openness.

🏠 Overview of Apartment Configurations
🏠 1 BHK units at 740 sq. ft.
🏡 2 BHK units at 1070 sq. ft. and 1200 sq. ft.
🧱 3 BHK Lux units at 1525 sq. ft.
🏢 3 BHK Grande units at 1825 sq. ft.
🏛️ 4 BHK Lux units at 2100 sq. ft.
🛋️ 4 BHK Grande units at 2500 sq. ft.

The Floor Plan offers multiple layout options, allowing buyers to choose based on their space needs and lifestyle preferences. Each apartment is designed with a clear separation between living, sleeping, and service areas, which improves both comfort and functionality.

Sobha One World 1 BHK Apartment Layout

The 1 BHK apartments are compact yet efficiently designed, making them ideal for working professionals and investors. Despite the smaller size, the layout ensures all essential areas are well arranged without feeling congested.

✨ Key Elements in 1 BHK Floor Plan
🛋️ Living and dining space designed for daily comfort
🍽️ Functional kitchen with proper ventilation
🌇 Balcony for fresh air and natural light
🚪 Foyer space for added privacy at entry
🛏️ One bedroom with efficient layout
🚿 One bathroom with smart space usage

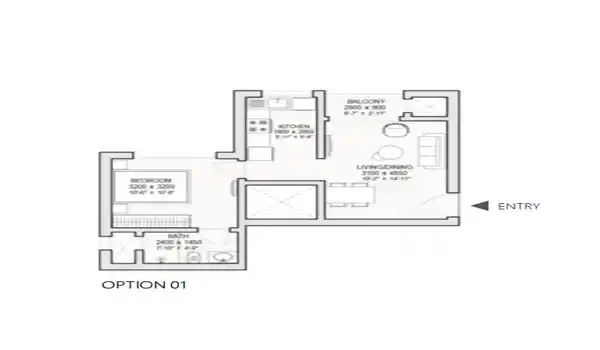
Sobha One World 2 BHK Apartment Layout

The 2 BHK apartments offer a balanced layout with better space and privacy, making them suitable for small families. Available in two size options, these homes provide flexibility and comfort for modern living.

✨ Key Elements in 2 BHK Floor Plan
🛋️ Spacious living and dining area for family use
🍳 Kitchen with dedicated utility space
🌿 Two balconies improving ventilation and openness
🚪 Entry foyer that enhances privacy
🛏️ Two bedrooms planned for comfort
🚿 Two bathrooms with practical layout

Sobha One World 3 BHK Apartment Layout

The 3 BHK apartments are larger and designed for growing families who need extra space. These homes focus on privacy, comfort, and efficient space usage, making them ideal for long-term living.

✨ Key Elements in 3 BHK Floor Plan
🛋️ Large living and dining space for gatherings
🍽️ Kitchen with attached utility area
🌇 Two balconies with open views
📚 Provision for study or maid’s room
🚪 Foyer area ensuring privacy
🛏️ Three bedrooms with good spacing
🚿 Three bathrooms with smart planning

Sobha One World 4 BHK Apartment Layout

The 4 BHK apartments are designed for luxury living and large families. These homes offer expansive interiors, multiple functional spaces, and a premium lifestyle experience.

✨ Key Elements in 4 BHK Floor Plan
🛋️ Large living area designed for comfort and style
🍳 Spacious kitchen with utility area
🌿 Three balconies for better airflow and views
📖 Extra room for study or maid’s use
🚪 Defined foyer for privacy
🛏️ Four bedrooms with ample space
🚿 Four bathrooms with efficient layout

All Sobha One World Floor Plan layouts follow Vaastu principles, with main doors facing favorable directions and kitchens placed as per recommended guidelines. This adds an additional layer of comfort for buyers who prefer traditional design principles.

📘 What Floor Plan Layouts Help Buyers Understand
📘 Clear arrangement of rooms and spaces
📐 Efficient usage of available area
🚶 Smooth movement between different sections
🌞 Natural light and airflow across rooms
🏠 Practical understanding of daily living experience

Sobha The One World floor plan PDF provides a detailed top-view layout of each apartment type. It helps buyers compare unit sizes, understand layout flow, and choose the best option based on their needs. Additionally, the design ensures that balconies face outward views, avoiding direct overlooking between units. Hidden AC outdoor placements and wide corridors further improve comfort and aesthetics.

Overall, Sobha One World Floor Plan reflects a well-planned design approach that combines functionality, comfort, and modern living. With multiple configurations and smart layouts, it offers homes that suit different lifestyles while ensuring a premium living experience in East Bangalore.

FAQ's- Frequently Asked Questions

The project features premium 1, 2, 3, and 4 BHK apartment layouts designed for spacious and comfortable living.